2階は現在募集がありません
DK五反田ビル 2階
物件概要
DK五反田ビルのテナント募集中区画
現在、空室がございません。
アクセス
DK五反田ビルの物件情報
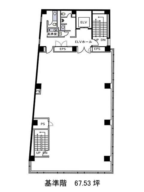
DK五反田ビル(品川区西五反田)は大崎広小路駅(出口)から徒歩6分の賃貸オフィスです。1992年竣工、地上9階建SRC造のビルです。ブラウンの外壁に、大きなガラス窓が並ぶすっきりとした外観をしています。2~9階の面積は63.41坪。柱が中央に無く、配置がしやすい形をしています。EV1基・空調・OAフロア・貸室外の男女別トイレ・非常階段2箇所があります。セキュリティとして、機械警備が導入されています。2014年にリニューアルが済んでおり、清潔感が保たれています。周辺は、マンションやオフィスビルが建ち並ぶエリアです。DK五反田ビルは大崎広小路駅(出口)の他に五反田駅(A2番出口)徒歩7分、不動前駅(出口)徒歩11分で利用も可能です。

