7階は現在募集がありません
1フロア募集区画あり

中村屋ビル 7階

前の写真 次の写真

物件概要

物件番号

754-00170-60

物件名

中村屋ビル

所在地

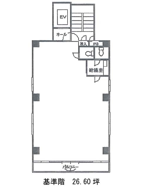
面積

26.60坪

賃料(共益費含)


入居日

募集終了

保証金

礼金

更新料

償却費

竣工

1981年1月

構造

SRC

規模

地上12階

トイレ

男女別

空調

個別空調

エレベーター

セキュリティ

駐車場

耐震

旧耐震基準

基準階天井高

空室延床面積

26.60坪

最寄駅

情報更新日

2026/05/21

中村屋ビルのテナント募集中区画

階数 面積 賃料(共益費含む) 保証金 入居可能日 検討リスト 詳細
4 26.60坪 385,000円/月(14,473円/坪) 180万円 相談
…新着物件

中村屋ビルのアクセス

中村屋ビルの物件情報

中村屋ビル(品川区西五反田)は大崎広小路駅(出口)から徒歩3分の賃貸オフィスです。
中村屋ビルは大崎広小路駅(出口)の他に五反田駅(出口)徒歩5分、大崎駅(西口)徒歩10分で利用も可能です。

近隣のエリア・駅から探す