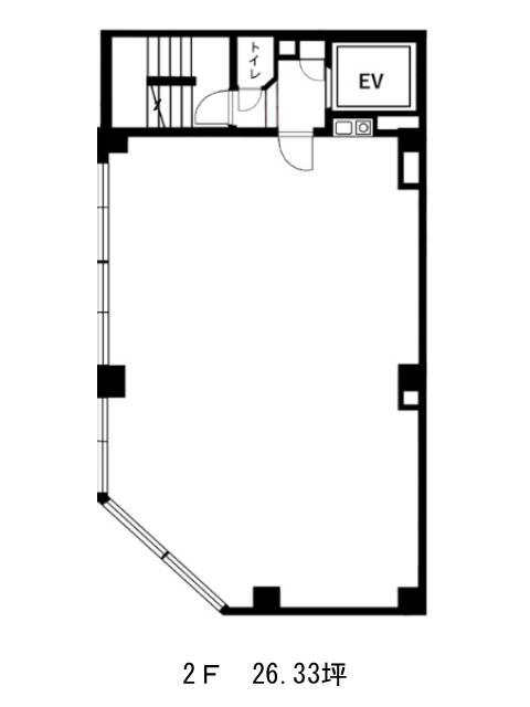
東京モリスビル第10 2階
物件概要
物件番号
754-00184-44物件名
東京モリスビル第10所在地
- 東京都品川区西五反田7-16-3
- アクセスマップ
面積
26.33坪賃料(共益費含)
月額419,963円(15,950円/坪)
入居日
即保証金
1,527,140円礼金
1ケ月更新料
新1ケ月償却費
2ケ月竣工
1989年5月構造
RC規模
地上5階トイレ
男女共用空調
個別空調エレベーター
有セキュリティ
駐車場
無耐震
新耐震基準基準階天井高
2,330mm空室延床面積
52.37坪情報更新日
2025/12/05東京モリスビル第10のテナント募集中区画
| 階数 | 面積 | 賃料(共益費含む) | 保証金 | 入居可能日 | 検討リスト | 詳細 |
|---|---|---|---|---|---|---|
| 2 | 26.33坪 | 419,963円/月(15,950円/坪) | 152万円 | 即 | ||
| 3 | 26.04坪 | 415,338円/月(15,950円/坪) | 151万円 | 2026年2月上旬 |
…新着物件
アクセス
東京モリスビル第10の物件情報
東京モリスビル第10(品川区西五反田)は大崎広小路駅(出口)から徒歩6分の賃貸オフィスです。東京モリスビル第10は大崎広小路駅(出口)の他に五反田駅(A2番出口)徒歩7分、不動前駅(出口)徒歩10分で利用も可能です。

