6階は現在募集がありません
3フロア募集区画あり

第3TOCビル 6階

前の写真 次の写真

物件概要

物件番号

754-00217-165

物件名

第3TOCビル

所在地

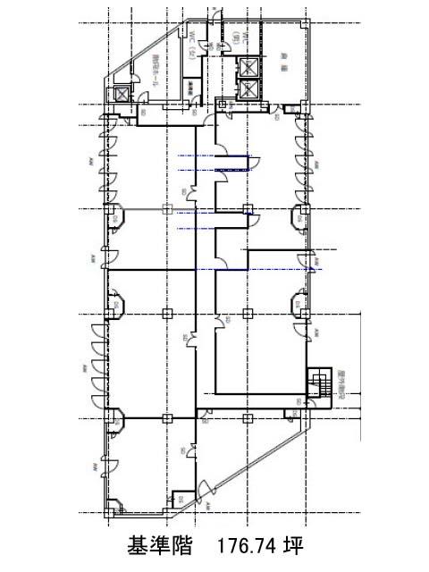
面積

176.74坪

賃料(共益費含)


入居日

募集終了

保証金

礼金

更新料

償却費

竣工

1971年1月

構造

SRC

規模

地上11階

トイレ

男女別

空調

エレベーター

セキュリティ

駐車場

耐震

旧耐震基準

基準階天井高

空室延床面積

155.11坪

最寄駅

情報更新日

2026/03/24

第3TOCビルのテナント募集中区画

階数 面積 賃料(共益費含む) 保証金 入居可能日 検討リスト 詳細
4 41.56坪 応相談(応相談) 応相談
4 76.13坪 応相談(応相談) 応相談
6 37.42坪 応相談(応相談) 応相談
…新着物件

第3TOCビルのアクセス

第3TOCビルの物件情報

第3TOCビル(品川区西五反田)は大崎広小路駅(出口)から徒歩7分の賃貸オフィスです。
第3TOCビルは大崎広小路駅(出口)の他に五反田駅(A2番出口)徒歩10分、不動前駅(出口)徒歩10分で利用も可能です。

近隣のエリア・駅から探す