第3TOCビルのテナント募集中区画
| 階数 | 面積 | 賃料(共益費含む) | 保証金 | 入居可能日 | 検討リスト | 詳細 |
|---|---|---|---|---|---|---|
| 4 | 41.56坪 | 応相談(応相談) | 応相談 | 即 | ||
| 6 | 37.42坪 | 応相談(応相談) | 応相談 | 即 |
…新着物件
アクセス
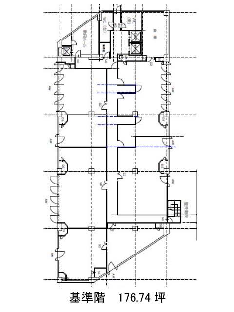
第3TOCビルの物件情報
第3TOCビル(品川区西五反田)は大崎広小路駅(出口)から徒歩7分の賃貸オフィスです。第3TOCビルは大崎広小路駅(出口)の他に五反田駅(A2番出口)徒歩10分、不動前駅(出口)徒歩10分で利用も可能です。

