7階は現在募集がありません
1フロア募集区画あり
ONEST西五反田スクエア 7階
物件概要
物件番号
754-00003-84物件名
ONEST西五反田スクエア所在地
- 東京都品川区西五反田7-24-5
- アクセスマップ
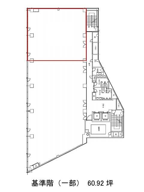
面積
60.92坪賃料(共益費含)
−入居日
募集終了保証金
−礼金
−更新料
−償却費
−竣工
1988年1月構造
SRC規模
地上8階/地下1階トイレ
男女別空調
個別空調エレベーター
有セキュリティ
有駐車場
有耐震
新耐震基準基準階天井高
2550mm空室延床面積
91.46坪情報更新日
2026/03/10ONEST西五反田スクエアのテナント募集中区画
| 階数 | 面積 | 賃料(共益費含む) | 保証金 | 入居可能日 | 検討リスト | 詳細 |
|---|---|---|---|---|---|---|
| 3 | 91.46坪 | 応相談(応相談) | 応相談 | 即 |
…新着物件
ONEST西五反田スクエアのアクセス
ONEST西五反田スクエアの物件情報
ONEST西五反田スクエア(品川区西五反田)は大崎広小路駅(出口)から徒歩7分の賃貸オフィスです。ONEST西五反田スクエアは大崎広小路駅(出口)の他に戸越駅(A3番出口)徒歩9分、五反田駅(A2番出口)徒歩10分で利用も可能です。

