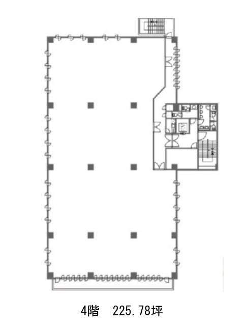
高徳ビル 4階 401-403
物件概要
高徳ビルのテナント募集中区画
…新着物件
高徳ビルのアクセス
高徳ビルの物件情報
高徳ビル(品川区大崎)は五反田駅(出口)から徒歩4分の賃貸オフィスです。1982年竣工、鉄骨鉄筋コンクリート造の地上4階建の建物です。基準階面積は約200坪ある低層階の大型オフィスです。五反田駅と大崎駅の中間に位置しており、各方面へのアクセスも良好な好立地。ベージュを基調としたタイル張りの外観が存在階のある佇まいです。エントランスは明るく広々としており来訪者にも好印象でしょう。駐車場も併設されており車をお使いの場合は便利な環境です。トイレは男女別、空調は個別空調、床仕様はOAフロアです。エレベーターは1基設置されており、機械警備を導入しておりますので安心です。高徳ビルは五反田駅(出口)の他に大崎広小路駅(出口)徒歩5分、大崎駅(西口)徒歩7分で利用も可能です。

