NKビル新大塚 5階 501
物件概要
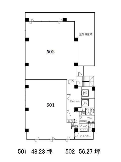
NKビル新大塚のテナント募集中区画
| 階数 | 面積 | 賃料(共益費含む) | 保証金 | 入居可能日 | 検討リスト | 詳細 |
|---|---|---|---|---|---|---|
| 5 | 104.50坪 | 応相談(応相談) | 応相談 | 即 | ||
| 5 | 48.23坪 | 応相談(応相談) | 応相談 | 即 | ||
| 5 | 56.27坪 | 応相談(応相談) | 応相談 | 即 |
…新着物件
NKビル新大塚のアクセス
NKビル新大塚の物件情報
NKビル新大塚(文京区大塚)は新大塚駅(2番出口)から徒歩3分の賃貸オフィスです。1994年竣工、地上10階建てSRC造のビルです。ブラウンの外壁で温かみのある外観をしています。EV2基・駐車場・男女別トイレ・個別空調といった設備仕様をしています。セキュリティとして安心の機械警備が導入されています。水まわり等の共用部は白を基調とした清潔感のある内装をしています。周辺は低層階の住宅や、中層階のビルが建ち並びます。徒歩圏内にカフェや飲食店が複数ありランチに便利でしょう。近隣に郵便局があります。NKビル新大塚は新大塚駅(2番出口)の他に護国寺駅(1番出口)徒歩9分、向原駅(停留所)徒歩10分で利用も可能です。

