文京グリーンコート センターオフィス 17階
物件概要
物件番号
789-00133-108物件名
文京グリーンコート センターオフィス所在地
- 東京都文京区本駒込2-28-8
- アクセスマップ
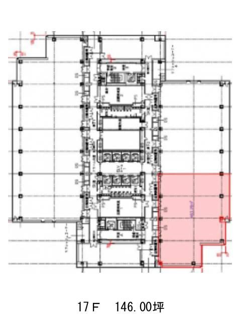
面積
146.00坪賃料(共益費含)
:応相談応相談
入居日
2026年1月上旬保証金
応相談礼金
なし更新料
なし償却費
なし竣工
1998年構造
SRC規模
地上23階/地下3階トイレ
男女別空調
個別空調エレベーター
有セキュリティ
駐車場
有耐震
新耐震基準基準階天井高
2625mm空室延床面積
484.00坪情報更新日
2025/11/07文京グリーンコート センターオフィスのテナント募集中区画
| 階数 | 面積 | 賃料(共益費含む) | 保証金 | 入居可能日 | 検討リスト | 詳細 |
|---|---|---|---|---|---|---|
| 10 | 301.00坪 | 応相談(応相談) | 応相談 | 即 | ||
| 17 | 146.00坪 | 応相談(応相談) | 応相談 | 2026年1月上旬 | ||
| 18 | 37.00坪 | 応相談(応相談) | 応相談 | 2026年4月上旬 |
…新着物件
アクセス
文京グリーンコート センターオフィスの物件情報
文京グリーンコート センターオフィス(文京区本駒込)は千石駅(A1番出口)から徒歩6分の賃貸オフィスです。
1998年竣工の鉄骨鉄筋コンクリート造、地上23階、地下3階建てのビルです。新耐震基準を満たしているため安心です。不忍通りに面しており、敷地内には植栽も多く、オフィスビルや商業ビル、マンションなどが一体となっており、郵便局やコンビニ、飲食店もあります。エレベーターは10基、駐車場もあるため社用車を利用される場合は活用できるでしょう。周辺には、学校や公園も多く緑の多い落ち着いたエリアです。
文京グリーンコート センターオフィスは千石駅(A1番出口)の他に本駒込駅(2番出口)徒歩11分、駒込駅(1番出口)徒歩11分で利用も可能です。


