さくら亀戸ビル 6階
物件概要
物件番号
79-00019-40物件名
さくら亀戸ビル所在地
- 東京都江東区亀戸5-2-3
- アクセスマップ
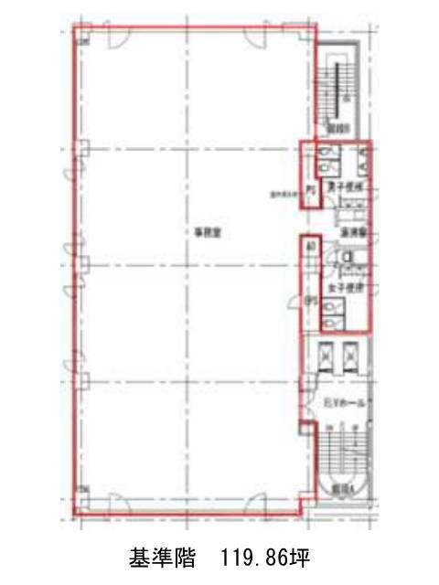
面積
119.86坪賃料(共益費含)
月額1,977,690円(16,500円/坪)
入居日
即保証金
17,979,000円礼金
なし更新料
あり償却費
なし竣工
1991年5月構造
SRC規模
地上8階/地下1階トイレ
男女別空調
個別空調エレベーター
有セキュリティ
駐車場
有耐震
新耐震基準基準階天井高
2450mm空室延床面積
359.58坪情報更新日
2025/11/10さくら亀戸ビルのテナント募集中区画
| 階数 | 面積 | 賃料(共益費含む) | 保証金 | 入居可能日 | 検討リスト | 詳細 |
|---|---|---|---|---|---|---|
| 4 | 119.86坪 | 1,977,690円/月(16,500円/坪) | 1,797万円 | 即 | ||
| 5 | 119.86坪 | 1,977,690円/月(16,500円/坪) | 1,797万円 | 即 | ||
| 6 | 119.86坪 | 1,977,690円/月(16,500円/坪) | 1,797万円 | 即 |
…新着物件
さくら亀戸ビルのアクセス
さくら亀戸ビルの物件情報
さくら亀戸ビル(江東区亀戸)は亀戸駅(北口)から徒歩2分の賃貸オフィスです。さくら亀戸ビルは亀戸駅(北口)の他に亀戸水神駅(出口)徒歩13分、錦糸町駅(4番出口)徒歩14分で利用も可能です。

