飯野ビル 1階
物件概要
物件番号
79-00042-105物件名
飯野ビル所在地
- 東京都江東区亀戸1-8-7
- アクセスマップ
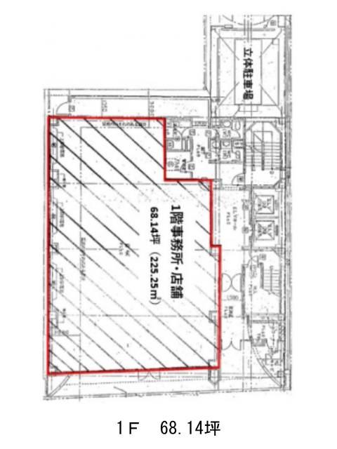
面積
68.14坪賃料(共益費含)
月額1,124,310円(16,500円/坪)
入居日
即保証金
12,265,200円礼金
なし更新料
なし償却費
なし竣工
1993年3月構造
S造規模
地上9階/地下1階トイレ
男女別空調
個別空調エレベーター
有セキュリティ
有駐車場
有耐震
新耐震基準基準階天井高
2600mm空室延床面積
68.14坪情報更新日
2026/02/13飯野ビルのテナント募集中区画
| 階数 | 面積 | 賃料(共益費含む) | 保証金 | 入居可能日 | 検討リスト | 詳細 |
|---|---|---|---|---|---|---|
| 1 | 68.14坪 | 1,124,310円/月(16,500円/坪) | 1,226万円 | 即 |
…新着物件
飯野ビルのアクセス
飯野ビルの物件情報
飯野ビル(江東区亀戸)は亀戸駅(北口)から徒歩6分の賃貸オフィスです。1993年竣工、地上9階・地下1階の鉄骨造で、京葉道路に面した場所にあるため視認性は良好です。ビル外観はグレーのタイル張りで落ち着いた雰囲気です。エントランスやエレベーターホールは光沢のある石調で高級感を演出しています。近隣にはコンビニ、郵便局があり、駅前の飲食店街も近く、お食事に困ることはありません。個別空調、男女別トイレ、エレベーターは2基が設置されており、機械警備が導入されています。基準階は約87坪で、貸室内は長方形で無柱空間なため自由なレイアウトが可能です。飯野ビルは亀戸駅(北口)の他に錦糸町駅(2番出口)徒歩11分、西大島駅(A3番出口)徒歩15分で利用も可能です。

