(仮)One-Ikebukuro 1階新着

前の写真 次の写真

物件概要

物件番号

802-00235-15

物件名

(仮)One-Ikebukuro

所在地

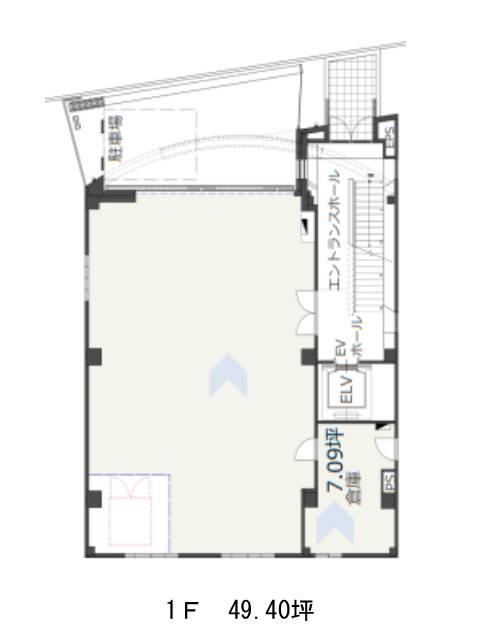
面積

49.40坪

賃料(共益費含)

:応相談
応相談

入居日

2026年6月上旬

保証金

応相談

礼金

なし

更新料

なし

償却費

2ケ月

竣工

1994年7月

構造

S造

規模

地上3階

トイレ

男女別

空調

個別空調

エレベーター

セキュリティ

駐車場

耐震

新耐震基準

基準階天井高

空室延床面積

296.57坪

最寄駅

情報更新日

2026/04/28

(仮)One-Ikebukuroのテナント募集中区画

階数 面積 賃料(共益費含む) 保証金 入居可能日 検討リスト 詳細
1-3 151.83坪 応相談(応相談) 応相談 2026年6月上旬
1 49.40坪 応相談(応相談) 応相談 2026年6月上旬
2 47.67坪 応相談(応相談) 応相談 2026年6月上旬
3 47.67坪 応相談(応相談) 応相談 2026年6月上旬
…新着物件

(仮)One-Ikebukuroのアクセス

(仮)One-Ikebukuroの物件情報

(仮)One-Ikebukuro(豊島区池袋)は池袋駅(20a番出口)から徒歩10分の賃貸オフィスです。
(仮)One-Ikebukuroは池袋駅(20a番出口)の他に北池袋駅(出口)徒歩10分、下板橋駅(南口)徒歩15分で利用も可能です。

近隣のエリア・駅から探す