5階は現在募集がありません
2フロア募集区画あり

PMO池袋 5階

前の写真 次の写真

物件概要

物件番号

805-00417-4

物件名

PMO池袋

所在地

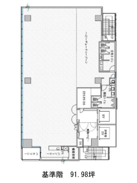
面積

91.98坪

賃料(共益費含)


入居日

募集終了

保証金

礼金

更新料

償却費

竣工

2023年5月

構造

S造

規模

地上12階

トイレ

男女別

空調

個別空調

エレベーター

セキュリティ

駐車場

耐震

新耐震基準

基準階天井高

2800mm

空室延床面積

183.96坪

最寄駅

情報更新日

2026/01/09

PMO池袋のテナント募集中区画

階数 面積 賃料(共益費含む) 保証金 入居可能日 検討リスト 詳細
8 91.98坪 応相談(応相談) 応相談
12 91.98坪 応相談(応相談) 応相談 相談
…新着物件

アクセス

PMO池袋の物件情報

PMO池袋(豊島区東池袋)は東池袋駅(1番出口)から徒歩4分の賃貸オフィスです。
2023年5月竣工、地上12階建てS造の新築ビルです。ミラーガラス貼りのスタイリッシュな外観をしています。基準階面積は91.98坪。中規模のオフィスをお探しの企業様に良いでしょう。貸室は支柱の出っ張りが少なく、レイアウトの自由度が高いでしょう。EV・駐車場・個別空調・OAフロア・男女別トイレ・非常階段2箇所といった設備仕様をしています。自動調光・空調最適化システム等の機器により快適なオフィスライフを過ごせるでしょう。
PMO池袋は東池袋駅(1番出口)の他に池袋駅(39番出口)徒歩5分、東池袋四丁目駅(停留所)徒歩7分で利用も可能です。

近隣のエリア・駅から探す