PMO池袋のテナント募集中区画
| 階数 | 面積 | 賃料(共益費含む) | 保証金 | 入居可能日 | 検討リスト | 詳細 |
|---|---|---|---|---|---|---|
| 8 | 91.98坪 | 応相談(応相談) | 応相談 | 即 |
…新着物件
アクセス
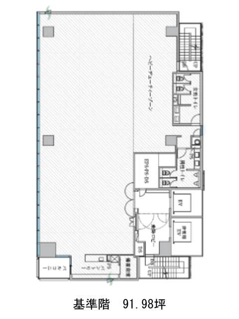
PMO池袋の物件情報
PMO池袋(豊島区東池袋)は東池袋駅(1番出口)から徒歩4分の賃貸オフィスです。2023年5月竣工、地上12階建てS造の新築ビルです。ミラーガラス貼りのスタイリッシュな外観をしています。基準階面積は91.98坪。中規模のオフィスをお探しの企業様に良いでしょう。貸室は支柱の出っ張りが少なく、レイアウトの自由度が高いでしょう。EV・駐車場・個別空調・OAフロア・男女別トイレ・非常階段2箇所といった設備仕様をしています。自動調光・空調最適化システム等の機器により快適なオフィスライフを過ごせるでしょう。PMO池袋は東池袋駅(1番出口)の他に池袋駅(39番出口)徒歩5分、東池袋四丁目駅(停留所)徒歩7分で利用も可能です。

