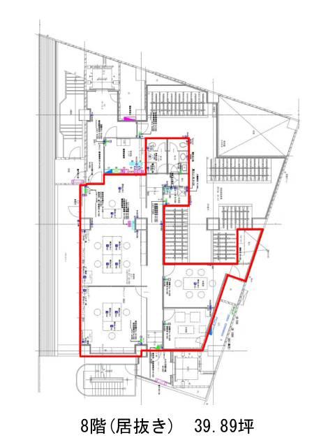
ラグーン池袋ビル 8階
物件概要
物件番号
805-00434-1物件名
ラグーン池袋ビル所在地
- 東京都豊島区東池袋1-21-1
- アクセスマップ
面積
39.89坪賃料(共益費含)
:応相談応相談
入居日
2026年2月上旬保証金
応相談礼金
なし更新料
なし償却費
なし竣工
1991年2月構造
SRC規模
地上8階/地下2階トイレ
男女別空調
個別空調エレベーター
有セキュリティ
有駐車場
無耐震
新耐震基準基準階天井高
空室延床面積
39.89坪情報更新日
2026/01/23ラグーン池袋ビルのテナント募集中区画
| 階数 | 面積 | 賃料(共益費含む) | 保証金 | 入居可能日 | 検討リスト | 詳細 |
|---|---|---|---|---|---|---|
| 8 | 39.89坪 | 応相談(応相談) | 応相談 | 2026年2月上旬 |
…新着物件
アクセス
ラグーン池袋ビルの物件情報
ラグーン池袋ビル(豊島区東池袋)は池袋駅(33番出口)から徒歩5分の賃貸オフィスです。ラグーン池袋ビルは池袋駅(33番出口)の他に東池袋駅(1番出口)徒歩7分、東池袋四丁目駅(停留所)徒歩10分で利用も可能です。

