レスポワール池袋 2階 201新着
物件概要
物件番号
805-00067-10物件名
レスポワール池袋所在地
- 東京都豊島区東池袋2-60-10
- アクセスマップ
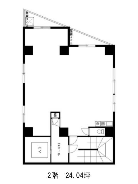
面積
24.04坪賃料(共益費含)
月額302,500円(12,584円/坪)
入居日
即保証金
810,052円礼金
2ケ月更新料
新1ケ月償却費
なし竣工
1999年1月構造
RC規模
地上6階/地下1階トイレ
男女共用空調
エレベーター
有セキュリティ
有駐車場
無耐震
新耐震基準基準階天井高
空室延床面積
24.04坪情報更新日
2026/02/24レスポワール池袋のテナント募集中区画
| 階数 | 面積 | 賃料(共益費含む) | 保証金 | 入居可能日 | 検討リスト | 詳細 |
|---|---|---|---|---|---|---|
| 2 | 24.04坪 | 302,500円/月(12,584円/坪) | 81万円 | 即 |
…新着物件
レスポワール池袋のアクセス
レスポワール池袋の物件情報
レスポワール池袋(豊島区東池袋)は池袋駅(29番出口)から徒歩9分の賃貸オフィスです。レスポワール池袋は池袋駅(29番出口)の他に東池袋駅(7番出口)徒歩13分、向原駅(停留所)徒歩13分で利用も可能です。

