8階は現在募集がありません
3フロア募集区画あり
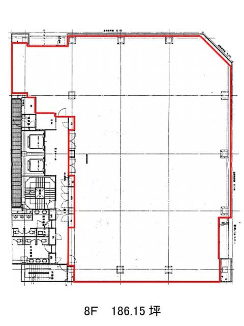
オリックス池袋ビル 8階
物件概要
物件番号
807-00105-80物件名
オリックス池袋ビル所在地
- 東京都豊島区南池袋1-19-6
- アクセスマップ
面積
186.15坪賃料(共益費含)
−入居日
募集終了保証金
−礼金
−更新料
−償却費
−竣工
2002年7月構造
SRC規模
地上9階/地下1階トイレ
男女別空調
個別空調エレベーター
有セキュリティ
有駐車場
有耐震
新耐震基準基準階天井高
2700mm空室延床面積
458.08坪情報更新日
2025/11/18オリックス池袋ビルのテナント募集中区画
| 階数 | 面積 | 賃料(共益費含む) | 保証金 | 入居可能日 | 検討リスト | 詳細 |
|---|---|---|---|---|---|---|
| 3 | 85.78坪 | 応相談(応相談) | 応相談 | 即 | ||
| 4 | 186.15坪 | 応相談(応相談) | 応相談 | 2026年4月上旬 | ||
| 5 | 186.15坪 | 応相談(応相談) | 応相談 | 2026年4月上旬 |
…新着物件
アクセス
オリックス池袋ビルの物件情報
オリックス池袋ビル(豊島区南池袋)は池袋駅(39番出口)から徒歩2分の賃貸オフィスです。オリックス池袋ビルは池袋駅(39番出口)の他に東池袋駅(1番出口)徒歩9分、都電雑司ヶ谷駅(停留所)徒歩12分で利用も可能です。

