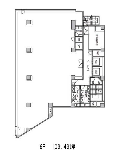
6階は現在募集がありません
藤久ビル東1号館 6階
物件概要
藤久ビル東1号館のテナント募集中区画
現在、空室がございません。
藤久ビル東1号館のアクセス
藤久ビル東1号館の物件情報
藤久ビル東1号館(豊島区南池袋)は池袋駅(40番出口)から徒歩1分の賃貸オフィスです。藤久ビル東1号館は池袋駅(40番出口)の他に東池袋駅(1番出口)徒歩9分、東池袋四丁目駅(停留所)徒歩12分で利用も可能です。

