7階は現在募集がありません
1フロア募集区画あり
JU KINSHICHO NORTH TOWER 7階
物件概要
物件番号
844-00001-40物件名
JU KINSHICHO NORTH TOWER所在地
- 東京都墨田区横川3-7-10
- アクセスマップ
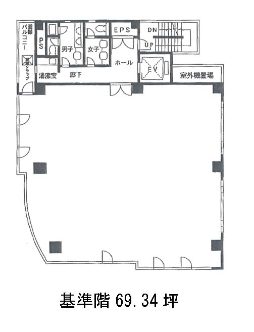
面積
69.34坪賃料(共益費含)
−入居日
募集終了保証金
−礼金
−更新料
−償却費
−竣工
1993年4月構造
SRC規模
地上9階トイレ
男女別空調
個別空調エレベーター
有セキュリティ
駐車場
有耐震
新耐震基準基準階天井高
2600mm空室延床面積
63.73坪最寄駅
- 押上駅
- 徒歩7分
- 錦糸町駅
- 徒歩8分
- とうきょうスカイツリー駅
- 徒歩15分
情報更新日
2026/03/18JU KINSHICHO NORTH TOWERのテナント募集中区画
| 階数 | 面積 | 賃料(共益費含む) | 保証金 | 入居可能日 | 検討リスト | 詳細 |
|---|---|---|---|---|---|---|
| 3 | 63.73坪 | 1,051,545円/月(16,500円/坪) | 662万円 | 即 |
…新着物件
JU KINSHICHO NORTH TOWERのアクセス
JU KINSHICHO NORTH TOWERの物件情報
JU KINSHICHO NORTH TOWER(墨田区横川)は押上駅(B1番出口)から徒歩7分の賃貸オフィスです。1993年竣工、四ツ目通りに面する基準階面積約69坪の地上9階建てです。外観はグレーの石調とミラーガラスのスタイリッシュなデザイン。頭頂部の大きな看板が遠くからでも目に留まります。また、ビルの低層部は駐車スペースやショウルームになっています。貸室内の柱は窓際にあり、正方形が確保できる間取りですので、レイアウトがしやすいでしょう。窓が多いため、採光や通風も期待できます。主な設備はエレベーター1基、個別空調、OAフロア、男女別トイレ等です。徒歩圏内の郵便局やコンビニ、商業施設が利用出来ますので、利便性も高いでしょう。また、北側にはスカイツリーの迫力ある姿を見ることが出来ます。JU KINSHICHO NORTH TOWERは押上駅(B1番出口)の他に錦糸町駅(出口2)徒歩8分、とうきょうスカイツリー駅(出口2)徒歩15分で利用も可能です。

