2階は現在募集がありません
3フロア募集区画あり

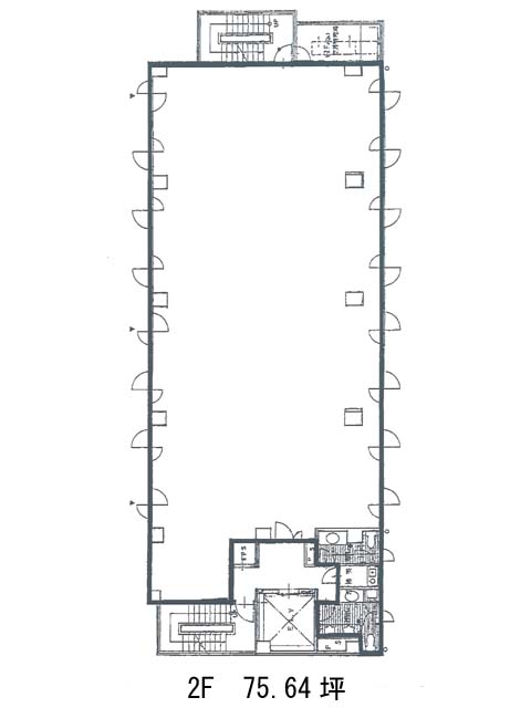
JU WATER FRONT錦糸町B.L.D 2階

前の写真 次の写真

物件概要

物件番号

845-00012-30

物件名

JU WATER FRONT錦糸町B.L.D

所在地

面積

75.64坪

賃料(共益費含)


入居日

募集終了

保証金

礼金

更新料

償却費

竣工

1992年6月

構造

RC

規模

地上6階

トイレ

男女別

空調

個別空調

エレベーター

セキュリティ

駐車場

耐震

新耐震基準

基準階天井高

2500mm

空室延床面積

208.83坪

最寄駅

情報更新日

2026/04/02

JU WATER FRONT錦糸町B.L.Dのテナント募集中区画

階数 面積 賃料(共益費含む) 保証金 入居可能日 検討リスト 詳細
3 57.55坪 949,575円/月(16,500円/坪) 517万円
5 75.64坪 1,248,060円/月(16,500円/坪) 680万円
6 75.64坪 1,248,060円/月(16,500円/坪) 680万円
…新着物件

JU WATER FRONT錦糸町B.L.Dのアクセス

JU WATER FRONT錦糸町B.L.Dの物件情報

JU WATER FRONT錦糸町B.L.D(墨田区亀沢)は錦糸町駅(北口)から徒歩8分の賃貸オフィスです。
JU WATER FRONT錦糸町B.L.Dは錦糸町駅(北口)の他に菊川駅(A3番出口)徒歩15分で利用も可能です。

近隣のエリア・駅から探す