JU WATER FRONT錦糸町B.L.D 6階
物件概要
物件番号
845-00012-80物件名
JU WATER FRONT錦糸町B.L.D所在地
- 東京都墨田区亀沢4-5-4
- アクセスマップ
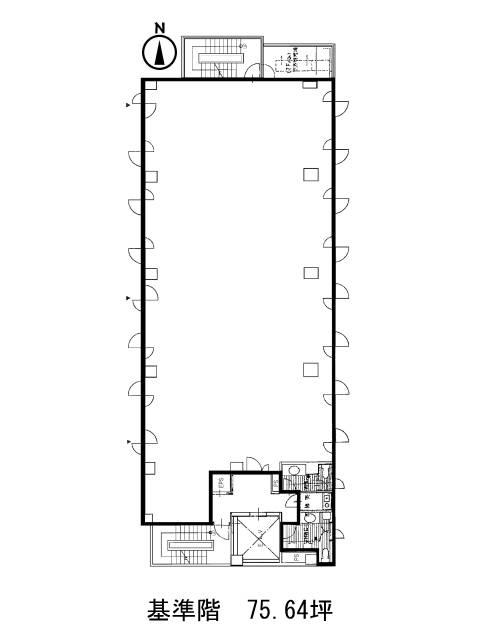
面積
75.64坪賃料(共益費含)
月額1,248,060円(16,500円/坪)
入居日
即保証金
6,807,600円礼金
なし更新料
なし償却費
なし竣工
1992年6月構造
RC規模
地上6階トイレ
男女別空調
個別空調エレベーター
有セキュリティ
駐車場
有耐震
新耐震基準基準階天井高
2500mm空室延床面積
208.83坪情報更新日
2026/03/03JU WATER FRONT錦糸町B.L.Dのテナント募集中区画
| 階数 | 面積 | 賃料(共益費含む) | 保証金 | 入居可能日 | 検討リスト | 詳細 |
|---|---|---|---|---|---|---|
| 3 | 57.55坪 | 949,575円/月(16,500円/坪) | 517万円 | 即 | ||
| 5 | 75.64坪 | 1,248,060円/月(16,500円/坪) | 680万円 | 即 | ||
| 6 | 75.64坪 | 1,248,060円/月(16,500円/坪) | 680万円 | 即 |
…新着物件
JU WATER FRONT錦糸町B.L.Dのアクセス
JU WATER FRONT錦糸町B.L.Dの物件情報
JU WATER FRONT錦糸町B.L.D(墨田区亀沢)は錦糸町駅(北口)から徒歩8分の賃貸オフィスです。JU WATER FRONT錦糸町B.L.Dは錦糸町駅(北口)の他に菊川駅(A3番出口)徒歩15分で利用も可能です。

