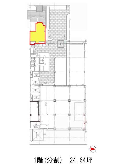
1階は現在募集がありません
アドン菊川 1階
物件概要
アドン菊川のテナント募集中区画
現在、空室がございません。
アドン菊川のアクセス
アドン菊川の物件情報
アドン菊川(墨田区菊川)は菊川駅(A3番出口)から徒歩2分の賃貸オフィスです。1995年竣工の地上9階建て、三ツ目通りに面しています。ブルーの爽やかな外観が建物の大きさと合わせて視認性を高めています。ビルの前面は平置きの駐車スペースとなっていますので、車をご利用の際は便利です。当物件は共用部を2020年にリニューアルしているため、エントランスをはじめ内装も綺麗ですので、気持ちよくお仕事ができそうです。設備面はエレベーターが4基ございますので、フロア移動がスムーズです。その他に個別空調、OAフロア、男女別トイレ等を備えています。また、徒歩圏内に薬局、飲食店、郵便局などが集まる利便性の高い環境です。アドン菊川は菊川駅(A3番出口)の他に住吉駅(A2番出口)徒歩11分、森下駅(A6番出口)徒歩12分で利用も可能です。

