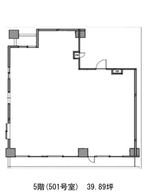
MFビル 5階 501
物件概要
MFビルのテナント募集中区画
| 階数 | 面積 | 賃料(共益費含む) | 保証金 | 入居可能日 | 検討リスト | 詳細 |
|---|---|---|---|---|---|---|
| 5 | 39.89坪 | 998,000円/月(25,019円/坪) | 544万円 | 即 |
…新着物件
MFビルのアクセス
MFビルの物件情報
MFビル(目黒区上目黒)は中目黒駅(出口)から徒歩4分の賃貸オフィスです。MFビルは中目黒駅(出口)の他に代官山駅(正面口)徒歩11分、恵比寿駅(4番出口)徒歩15分で利用も可能です。

