エス・ティビル 4階
物件概要
物件番号
128-00009-30物件名
エス・ティビル所在地
- 東京都港区芝公園1-2-4
- アクセスマップ
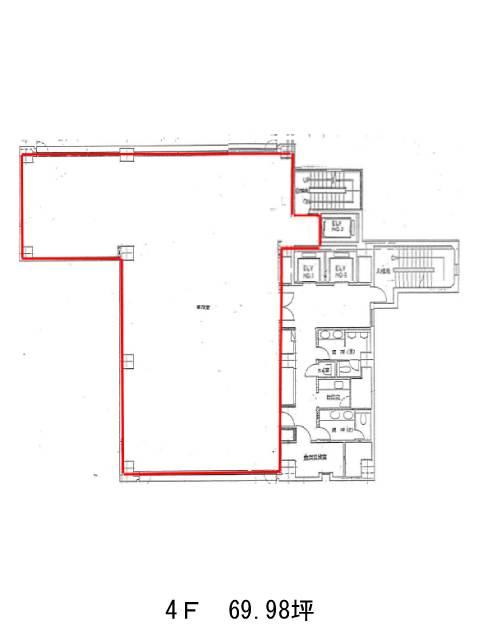
面積
69.98坪賃料(共益費含)
:応相談応相談
入居日
2026年4月保証金
応相談礼金
なし更新料
なし償却費
なし竣工
1992年10月構造
SRC規模
地上9階/地下2階トイレ
男女別空調
個別空調エレベーター
有セキュリティ
有駐車場
有耐震
新耐震基準基準階天井高
2580mm空室延床面積
139.06坪情報更新日
2025/12/04エス・ティビルのテナント募集中区画
| 階数 | 面積 | 賃料(共益費含む) | 保証金 | 入居可能日 | 検討リスト | 詳細 |
|---|---|---|---|---|---|---|
| 3 | 69.08坪 | 応相談(応相談) | 応相談 | 2026年4月 | ||
| 4 | 69.98坪 | 応相談(応相談) | 応相談 | 2026年4月 |
…新着物件
アクセス
エス・ティビルの物件情報
エス・ティビル(港区芝公園)は御成門駅(A3a番出口)から徒歩3分の賃貸オフィスです。駅からのアクセスにも優れた本物件は、レンガ調と石造りを組み合わせた重厚感ある外観が特徴。ブラウン系で統一されたファサードは、ビジネスにふさわしい落ち着きを演出します。
基準階は約70坪のL字型区画で、無柱設計×OAフロアにより、部署ごとのゾーニングや来客スペースの設置なども柔軟に対応可能です。エントランスからホールにかけてはクラシカルで品のある印象。EV2基、機械警備、駐車場完備といった基本設備も充実しており、機能面も安心です。周辺は緑が点在する静かなエリアでありながら、都市の利便性を兼ね備えている点もポイント。落ち着いた環境で生産性を高めたい企業様におすすめです。エス・ティビルは御成門駅(A3a番出口)の他に大門駅(A6番出口)徒歩6分、芝公園駅(A3番出口)徒歩10分で利用も可能です。

