5階は現在募集がありません
2フロア募集区画あり

エス・ティビル 5階

前の写真 次の写真

物件概要

物件番号

128-00009-40

物件名

エス・ティビル

所在地

面積

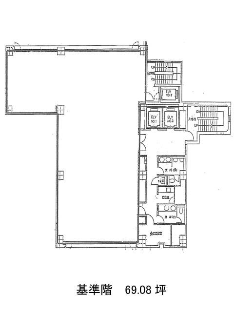
69.08坪

賃料(共益費含)


入居日

募集終了

保証金

礼金

更新料

償却費

竣工

1992年10月

構造

SRC

規模

地上9階/地下2階

トイレ

男女別

空調

個別空調

エレベーター

セキュリティ

駐車場

耐震

新耐震基準

基準階天井高

2580mm

空室延床面積

139.06坪

最寄駅

情報更新日

2025/12/04

エス・ティビルのテナント募集中区画

階数 面積 賃料(共益費含む) 保証金 入居可能日 検討リスト 詳細
3 69.08坪 応相談(応相談) 応相談 2026年4月
4 69.98坪 応相談(応相談) 応相談 2026年4月
…新着物件

アクセス

エス・ティビルの物件情報

エス・ティビル(港区芝公園)は御成門駅(A3a番出口)から徒歩3分の賃貸オフィスです。
駅からのアクセスにも優れた本物件は、レンガ調と石造りを組み合わせた重厚感ある外観が特徴。ブラウン系で統一されたファサードは、ビジネスにふさわしい落ち着きを演出します。
基準階は約70坪のL字型区画で、無柱設計×OAフロアにより、部署ごとのゾーニングや来客スペースの設置なども柔軟に対応可能です。エントランスからホールにかけてはクラシカルで品のある印象。EV2基、機械警備、駐車場完備といった基本設備も充実しており、機能面も安心です。周辺は緑が点在する静かなエリアでありながら、都市の利便性を兼ね備えている点もポイント。落ち着いた環境で生産性を高めたい企業様におすすめです。
エス・ティビルは御成門駅(A3a番出口)の他に大門駅(A6番出口)徒歩6分、芝公園駅(A3番出口)徒歩10分で利用も可能です。

近隣のエリア・駅から探す