VORT六本木1丁目ビル 1階
物件概要
物件番号
147-00603-1物件名
VORT六本木1丁目ビル所在地
- 東京都港区六本木2-3-3
- アクセスマップ
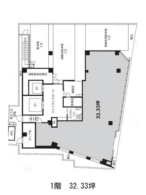
面積
32.33坪賃料(共益費含)
:応相談応相談
入居日
2026年5月上旬保証金
応相談礼金
1ケ月更新料
新1ケ月償却費
なし竣工
2023年9月構造
S造規模
地上14階トイレ
男女共用空調
個別空調エレベーター
有セキュリティ
駐車場
有耐震
新耐震基準基準階天井高
2,700~3,025mm空室延床面積
81.59坪情報更新日
2025/12/24VORT六本木1丁目ビルのテナント募集中区画
| 階数 | 面積 | 賃料(共益費含む) | 保証金 | 入居可能日 | 検討リスト | 詳細 |
|---|---|---|---|---|---|---|
| 1 | 32.33坪 | 応相談(応相談) | 応相談 | 2026年5月上旬 | ||
| 2 | 49.26坪 | 応相談(応相談) | 応相談 | 2026年3月下旬 |
…新着物件
アクセス
VORT六本木1丁目ビルの物件情報
VORT六本木1丁目ビル(港区六本木)は六本木一丁目駅(3番出口)から徒歩2分の賃貸オフィスです。VORT六本木1丁目ビルは六本木一丁目駅(3番出口)の他に溜池山王駅(12番出口)徒歩6分、六本木駅(6番出口)徒歩9分で利用も可能です。

