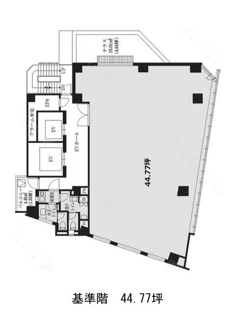
5階は現在募集がありません
VORT六本木1丁目ビル 5階
物件概要
VORT六本木1丁目ビルのテナント募集中区画
現在、空室がございません。
VORT六本木1丁目ビルのアクセス
VORT六本木1丁目ビルの物件情報
VORT六本木1丁目ビル(港区六本木)は六本木一丁目駅(3番出口)から徒歩2分の賃貸オフィスです。VORT六本木1丁目ビルは六本木一丁目駅(3番出口)の他に溜池山王駅(12番出口)徒歩6分、六本木駅(6番出口)徒歩9分で利用も可能です。

