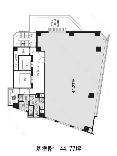
VORT六本木1丁目ビルのテナント募集中区画
| 階数 | 面積 | 賃料(共益費含む) | 保証金 | 入居可能日 | 検討リスト | 詳細 |
|---|---|---|---|---|---|---|
| 1 | 32.33坪 | 応相談(応相談) | 応相談 | 2026年5月上旬 | ||
| 2 | 49.26坪 | 応相談(応相談) | 応相談 | 2026年3月下旬 |
…新着物件
アクセス
VORT六本木1丁目ビルの物件情報
VORT六本木1丁目ビル(港区六本木)は六本木一丁目駅(3番出口)から徒歩2分の賃貸オフィスです。VORT六本木1丁目ビルは六本木一丁目駅(3番出口)の他に溜池山王駅(12番出口)徒歩6分、六本木駅(6番出口)徒歩9分で利用も可能です。

