Sreed EBISU EAST 7階新着
物件概要
物件番号
159-00041-50物件名
Sreed EBISU EAST所在地
- 東京都渋谷区恵比寿1-24-15
- アクセスマップ
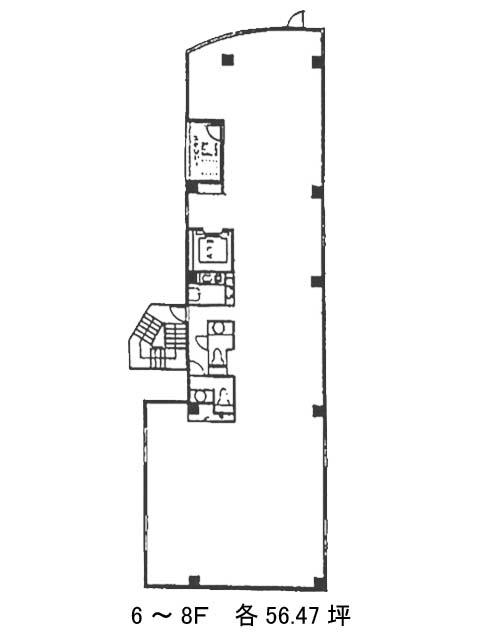
面積
56.47坪賃料(共益費含)
月額1,863,510円(33,000円/坪)
入居日
2026年7月上旬保証金
18,296,280円礼金
なし更新料
新1ケ月償却費
なし竣工
1993年4月構造
S造規模
地上9階トイレ
男女別空調
個別空調エレベーター
有セキュリティ
有駐車場
無耐震
新耐震基準基準階天井高
2400mm空室延床面積
112.94坪情報更新日
2026/04/14Sreed EBISU EAST のテナント募集中区画
| 階数 | 面積 | 賃料(共益費含む) | 保証金 | 入居可能日 | 検討リスト | 詳細 |
|---|---|---|---|---|---|---|
| 7 | 56.47坪 | 1,863,510円/月(33,000円/坪) | 1,829万円 | 2026年7月上旬 | ||
| 8 | 56.47坪 | 1,863,510円/月(33,000円/坪) | 1,829万円 | 2026年7月上旬 |
…新着物件
Sreed EBISU EAST のアクセス
Sreed EBISU EAST の物件情報
Sreed EBISU EAST (渋谷区恵比寿)は恵比寿駅(東口)から徒歩7分の賃貸オフィスです。駒沢通りを南へ入ったところにある、9階建てのビルです。黒い外壁とミラーガラスの窓ガラスを組み合わせた、スタイリッシュなデザインの外観です。部屋の広さは複数あり、34坪弱から56坪ほどの広さがあります。L字型の間取りで、床がフリーアクセスになっているので、レイアウトしやすいです。トイレは男女別になっています。恵比寿の地名は、ヱビスビールに由来します。サッポロビールの本拠地として、ビール広場・ビール坂・ビール橋などの名称が残っています。Sreed EBISU EAST は恵比寿駅(東口)の他に広尾駅(2番出口)徒歩13分で利用も可能です。

