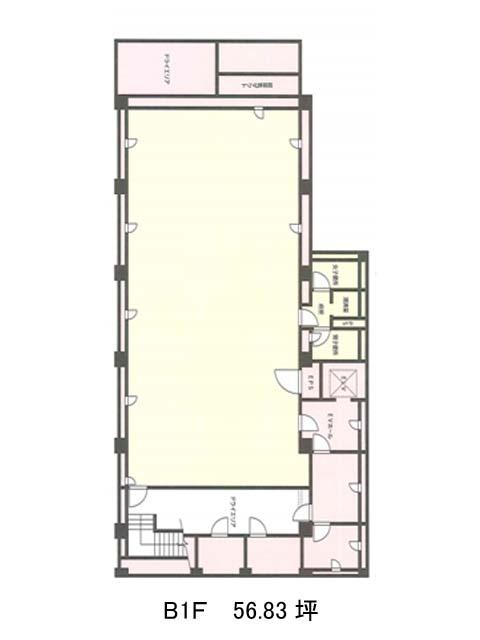
モワビル 地下1階
物件概要
モワビルのテナント募集中区画
| 階数 | 面積 | 賃料(共益費含む) | 保証金 | 入居可能日 | 検討リスト | 詳細 |
|---|---|---|---|---|---|---|
| 地下1 | 56.83坪 | 応相談(応相談) | 応相談 | 即 |
…新着物件
モワビルのアクセス
モワビルの物件情報
モワビル(渋谷区恵比寿西)は恵比寿駅(3番出口)から徒歩4分の賃貸オフィスです。1990年竣工、地上6階地下1階建SRC造の建物です。グレーの外壁で重厚感のある外観をしています。長方形の貸室は、無柱で機器や棚のレイアウトがしやすいでしょう。設備仕様として、EV1基・給湯室・機械警備・個別空調・給湯室・男女別トイレがそろいます。オフィスは24時間利用可能です。周辺は中層階のオフィスビルや店舗が建ち並ぶエリアです。フレンチ・カフェ等個人の飲食店が充実しており、ランチにご利用頂けるでしょう。モワビルは恵比寿駅(3番出口)の他に代官山駅(東口)徒歩6分、渋谷駅(新南口)徒歩13分で利用も可能です。

