HAGIWARA BLDG.2/萩原ビル第2 3階
物件概要
物件番号
163-00209-3物件名
HAGIWARA BLDG.2/萩原ビル第2所在地
- 東京都渋谷区広尾1-2-2
- アクセスマップ
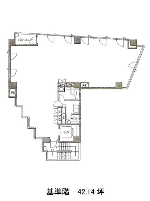
面積
42.14坪賃料(共益費含)
月額935,000円(22,188円/坪)
入居日
即保証金
8,500,059円礼金
1ケ月更新料
新1ケ月償却費
なし竣工
1996年1月構造
SRC規模
地上9階トイレ
男女別空調
個別空調エレベーター
有セキュリティ
有駐車場
有耐震
新耐震基準基準階天井高
2450mm空室延床面積
126.42坪情報更新日
2025/12/11HAGIWARA BLDG.2/萩原ビル第2のテナント募集中区画
| 階数 | 面積 | 賃料(共益費含む) | 保証金 | 入居可能日 | 検討リスト | 詳細 |
|---|---|---|---|---|---|---|
| 3 | 42.14坪 | 935,000円/月(22,188円/坪) | 850万円 | 即 | ||
| 4 | 42.14坪 | 946,000円/月(22,449円/坪) | 860万円 | 即 | ||
| 6 | 42.14坪 | 957,000円/月(22,710円/坪) | 870万円 | 即 |
…新着物件
HAGIWARA BLDG.2/萩原ビル第2のアクセス
HAGIWARA BLDG.2/萩原ビル第2の物件情報
HAGIWARA BLDG.2/萩原ビル第2(渋谷区広尾)は恵比寿駅(1番出口)から徒歩6分の賃貸オフィスです。当ビルは1996年竣工、SRC構造・地上9階建てで、新耐震基準に対応。周囲は明治通りや渋谷橋交差点が近くオフィス街ながら、落ち着いた品格漂う外観です。
基準階は約42坪のL字変形で、柱は壁・窓際にまとめられています。男女別トイレと給湯室も室内にまとめられており、専有性と実用性が両立しています。
エレベーター1基を各階ホールから入室する導線設計で、来客動線とプライバシーを意識した仕様です。機械警備・オートロック・エレベーター不停止機能の三重セキュリティにより、セキュリティ意識が高まりやすく、24時間利用にも対応可能です。
周辺は恵比寿駅から徒歩5分圏内、コンビニ・郵便局・カフェ・銀行が徒歩すぐのロケーション。恵比寿・代官山・広尾など複数駅が利用可能で、業務だけでなく生活シーンもカバーする利便性がありますHAGIWARA BLDG.2/萩原ビル第2は恵比寿駅(1番出口)の他に代官山駅(東口)徒歩13分、広尾駅(2番出口)徒歩14分で利用も可能です。

