初台パークサイドハイツ 102-103
物件概要
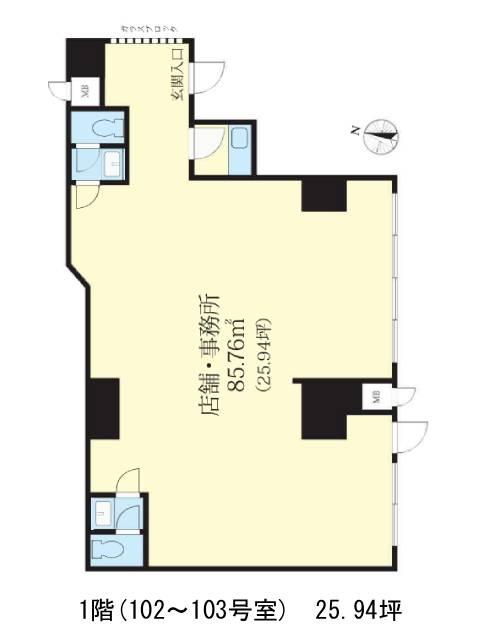
初台パークサイドハイツのテナント募集中区画
| 階数 | 面積 | 賃料(共益費含む) | 保証金 | 入居可能日 | 検討リスト | 詳細 |
|---|---|---|---|---|---|---|
| 102-103 | 25.94坪 | 484,000円/月(18,660円/坪) | 120万円 | 2026年5月上旬 |
…新着物件
初台パークサイドハイツのアクセス
初台パークサイドハイツの物件情報
初台パークサイドハイツ(渋谷区初台)は初台駅(南口)から徒歩2分の賃貸オフィスです。初台パークサイドハイツは初台駅(南口)の他に参宮橋駅(出口2)徒歩11分で利用も可能です。

