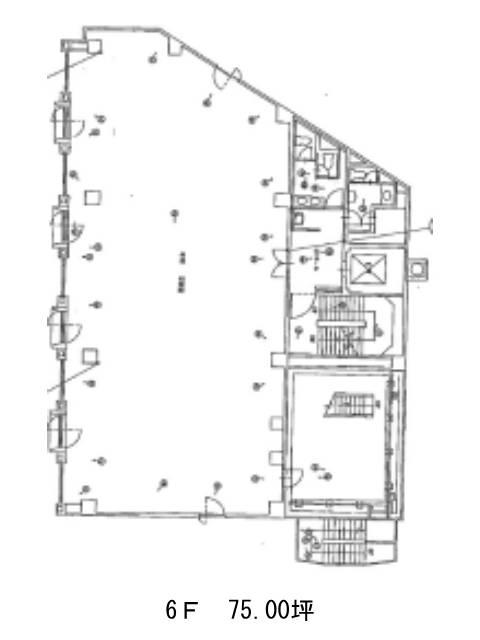
パトリアビル 6階
物件概要
パトリアビルのテナント募集中区画
| 階数 | 面積 | 賃料(共益費含む) | 保証金 | 入居可能日 | 検討リスト | 詳細 |
|---|---|---|---|---|---|---|
| 6 | 75.00坪 | 応相談(応相談) | 応相談 | 即 |
…新着物件
パトリアビルのアクセス
パトリアビルの物件情報
パトリアビル(渋谷区神宮前)は明治神宮前駅(4番出口)から徒歩3分の賃貸オフィスです。全体的にクリーム色の外観で、窓を囲む庇のようなデザインが特徴的です。1階で営業中の靴店が、目印として活用できます。室内は窓の近くに柱が並ぶ間取りですので、比較的レイアウトがしやすそうです。また、明治通り沿いにありますので、採光も良好でしょう。ビル内にはエレベーター、個別空調が備えられ、セキュリティは機械警備を導入しています。周辺には馴染み深い飲食店から流行りの路面店まで、様々な店舗がひしめくエリアですので、買い物や毎日のランチ選びが楽しいでしょう。パトリアビルは明治神宮前駅(4番出口)の他に原宿駅(竹下口)徒歩6分、表参道駅(A2番出口)徒歩9分で利用も可能です。

