8階は現在募集がありません
1フロア募集区画あり

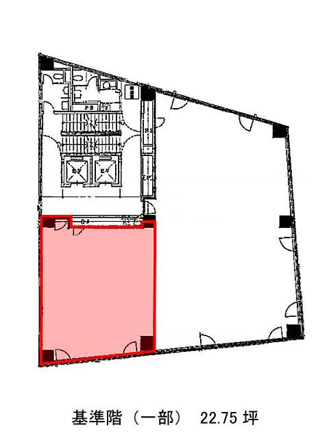
新中央ビル 8階

前の写真 次の写真

物件概要

物件番号

177-00012-100

物件名

新中央ビル

所在地

面積

22.75坪

賃料(共益費含)


入居日

募集終了

保証金

礼金

更新料

償却費

竣工

1988年8月

構造

SRC

規模

地上9階

トイレ

男女別

空調

個別空調

エレベーター

セキュリティ

駐車場

耐震

新耐震基準

基準階天井高

2450mm

空室延床面積

48.53坪

最寄駅

情報更新日

2026/05/25

新中央ビルのテナント募集中区画

階数 面積 賃料(共益費含む) 保証金 入居可能日 検討リスト 詳細
4 48.53坪 応相談(応相談) 応相談
…新着物件

新中央ビルのアクセス

新中央ビルの物件情報

新中央ビル(渋谷区代々木)は新宿駅(8番出口)から徒歩1分の賃貸オフィスです。
1988年竣工、新耐震基準を満たす地上9階建てです。甲州街道沿いにあり、明るい色味のタイル張りの外観から清潔感が感じられます。白い大理石を使用したエントランスは明るく好印象です。オフィス内は3面に窓が設置され、ビルの背面は公園ですので、明るく圧迫感の少ない空間でお仕事が可能です。主な設備としてエレベーター2基、個別空調、OAフロア、男女別トイレ等が備えられています。周辺には郵便局や複数の金融機関、飲食店をはじめ数多くの店舗が揃い、利便性についても大変高い環境といえます。
新中央ビルは新宿駅(8番出口)の他に南新宿駅(出口)徒歩8分、都庁前駅(A2番出口)徒歩8分で利用も可能です。

近隣のエリア・駅から探す