20階は現在募集がありません
1フロア募集区画あり
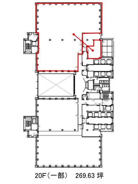
新宿マインズタワー 20階
物件概要
物件番号
177-00124-341物件名
新宿マインズタワー所在地
- 東京都渋谷区代々木2-1-1
- アクセスマップ
面積
269.63坪賃料(共益費含)
−入居日
募集終了保証金
−礼金
−更新料
−償却費
−竣工
1995年9月構造
SRC規模
地上34階/地下3階トイレ
男女別空調
セントラルエレベーター
有セキュリティ
有駐車場
有耐震
新耐震基準基準階天井高
2480~2670mm空室延床面積
99.53坪情報更新日
2026/04/07新宿マインズタワーのテナント募集中区画
| 階数 | 面積 | 賃料(共益費含む) | 保証金 | 入居可能日 | 検討リスト | 詳細 |
|---|---|---|---|---|---|---|
| 8 | 99.53坪 | 応相談(応相談) | 応相談 | 2026年5月中旬 |
…新着物件
新宿マインズタワーのアクセス
新宿マインズタワーの物件情報
新宿マインズタワー(渋谷区代々木)は新宿駅(A1番出口)から徒歩2分の賃貸オフィスです。基準階面積はおおよそ500坪、地上34階建ての大規模な高層オフィスビルです。中央にある吹き抜けのアトリウムを挟んで2つの区画が設けられた特徴的な構造となっています。濃色の石張りとミラーガラスによる重厚感のある外観で、光が降り注ぐ大理石のエントランスホールは圧巻の眺めです。エレベーターは20基以上設置されていますので、朝夕の昇降もスムーズでしょう。オフィス内にはOAフロア、光ケーブル可、グリッド天井、LED照明など充実の設備が整い、併設の駐車場には60台以上の収容が可能です。昼食の際は地下にあるレストラン街が便利です。また当物件は都営線に直結し、サザンテラス口からもウッドデッキで直通できますので、アクセスのしやすさも言うことなしです。新宿マインズタワーは新宿駅(A1番出口)の他に南新宿駅(出口)徒歩6分、代々木駅(A3番出口)徒歩6分で利用も可能です。

