3階は現在募集がありません
1フロア募集区画あり

新宿スリーケービル 3階

前の写真 次の写真

物件概要

物件番号

177-00014-20

物件名

新宿スリーケービル

所在地

面積

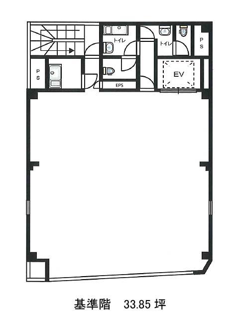
33.85坪

賃料(共益費含)


入居日

募集終了

保証金

礼金

更新料

償却費

竣工

1989年1月

構造

RC

規模

地上9階/地下1階

トイレ

男女別

空調

個別空調

エレベーター

セキュリティ

駐車場

耐震

新耐震基準

基準階天井高

空室延床面積

33.85坪

最寄駅

情報更新日

2025/10/10

新宿スリーケービルのテナント募集中区画

階数 面積 賃料(共益費含む) 保証金 入居可能日 検討リスト 詳細
7 33.85坪 応相談(応相談) 360万円
…新着物件

アクセス

新宿スリーケービルの物件情報

新宿スリーケービル(渋谷区代々木)は新宿駅(8番出口)から徒歩6分の賃貸オフィスです。
甲州街道沿いに建つ、地上9階・地下1階建てのビルです。西側が駐車場の入り口になっているので、開放的な立地です。茶色のタイル貼りの落ち着いた雰囲気の外観で、現在、1階にマッサージ店、2階にクリニックが入居しています。基準階は33.85坪の正方形に近い間取りです。室内に給湯室、共用部に男女別トイレが設置されています。甲州街道を渡ると西新宿の高層ビルが立ち並ぶエリアになります。西新宿はビジネス街のイメージが強いのですが、再開発でマンションが建つ予定がいくつかあります。当物件近くの西新宿三丁目西地区(オペラシティ、NTT東日本本社ビル、新宿パークタワー等に隣接する地域)には、3000戸超の大規模マンションの建設予定があり、2022年度着工、2029年度竣工を目指して計画が進んでいます。
新宿スリーケービルは新宿駅(8番出口)の他に初台駅(出口1)徒歩9分、都庁前駅(A4番出口)徒歩9分で利用も可能です。

近隣のエリア・駅から探す