新宿スリーケービルのテナント募集中区画
| 階数 | 面積 | 賃料(共益費含む) | 保証金 | 入居可能日 | 検討リスト | 詳細 |
|---|---|---|---|---|---|---|
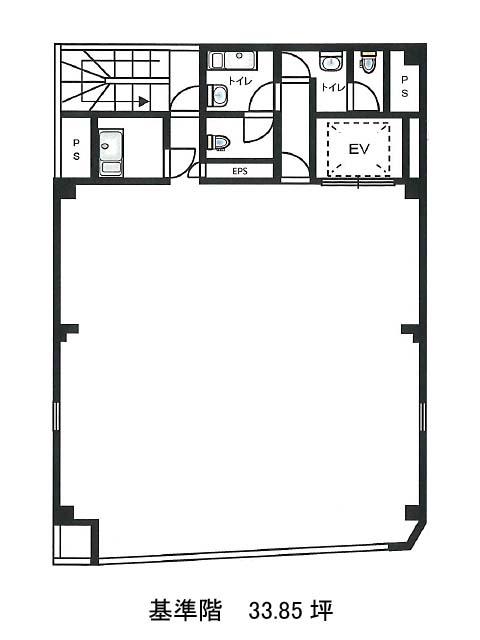
| 7 | 33.85坪 | 応相談(応相談) | 360万円 | 即 |
…新着物件
アクセス
新宿スリーケービルの物件情報
新宿スリーケービル(渋谷区代々木)は新宿駅(8番出口)から徒歩6分の賃貸オフィスです。甲州街道沿いに建つ、地上9階・地下1階建てのビルです。西側が駐車場の入り口になっているので、開放的な立地です。茶色のタイル貼りの落ち着いた雰囲気の外観で、現在、1階にマッサージ店、2階にクリニックが入居しています。基準階は33.85坪の正方形に近い間取りです。室内に給湯室、共用部に男女別トイレが設置されています。甲州街道を渡ると西新宿の高層ビルが立ち並ぶエリアになります。西新宿はビジネス街のイメージが強いのですが、再開発でマンションが建つ予定がいくつかあります。当物件近くの西新宿三丁目西地区(オペラシティ、NTT東日本本社ビル、新宿パークタワー等に隣接する地域)には、3000戸超の大規模マンションの建設予定があり、2022年度着工、2029年度竣工を目指して計画が進んでいます。新宿スリーケービルは新宿駅(8番出口)の他に初台駅(出口1)徒歩9分、都庁前駅(A4番出口)徒歩9分で利用も可能です。

