6階は現在募集がありません
宮坂甲斐路ビル 6階
物件概要
宮坂甲斐路ビルのテナント募集中区画
現在、空室がございません。
アクセス
宮坂甲斐路ビルの物件情報
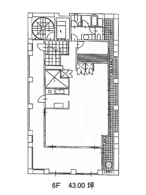
宮坂甲斐路ビル(渋谷区代々木)は新宿駅(8番出口)から徒歩3分の賃貸オフィスです。1990年竣工、地上7階建RC造の建物です。白い外壁に大きな窓ガラスが並び、デザイン性の高い外観をしています。三面に窓があり、明るい室内となるでしょう。貸室は長方形の無柱空間で、オフィス家具や機器の配置がしやすい形をしています。基準階面積は45.54坪。EV1基・駐車場・個別空調・タイルカーペット・男女別トイレといった設備仕様をしています。セキュリティとして安心の機械警備が導入されています。甲州街道より入り込んだ場所に建ち、落ち着いた雰囲気のエリアです。宮坂甲斐路ビルは新宿駅(8番出口)の他に南新宿駅(出口)徒歩7分、都庁前駅(A2番出口)徒歩8分で利用も可能です。

