3階は現在募集がありません
3フロア募集区画あり

VORT西新宿Ⅱ 3階

前の写真 次の写真

物件概要

物件番号

177-00330-30

物件名

VORT西新宿Ⅱ

所在地

面積

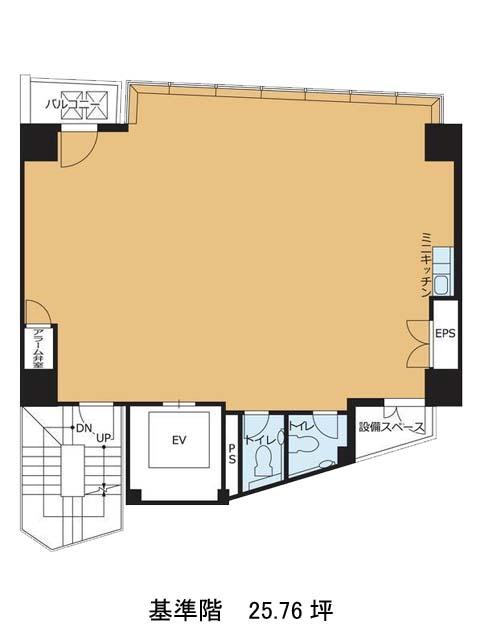
25.77坪

賃料(共益費含)


入居日

募集終了

保証金

礼金

更新料

償却費

竣工

2007年11月

構造

S造

規模

地上11階

トイレ

男女別

空調

個別空調

エレベーター

セキュリティ

駐車場

耐震

新耐震基準

基準階天井高

2450mm

空室延床面積

77.28坪

最寄駅

情報更新日

2026/04/22

VORT西新宿Ⅱのテナント募集中区画

階数 面積 賃料(共益費含む) 保証金 入居可能日 検討リスト 詳細
7 25.76坪 応相談(応相談) 応相談 2026年8月上旬
9 25.76坪 応相談(応相談) 応相談 2026年6月上旬
10 25.76坪 応相談(応相談) 応相談 2026年7月下旬
…新着物件

VORT西新宿Ⅱのアクセス

VORT西新宿Ⅱの物件情報

VORT西新宿Ⅱ(渋谷区代々木)は新宿駅(8番出口)から徒歩5分の賃貸オフィスです。
甲州街道沿いに建つ、11階建てのビルです。2007年11月竣工の比較的築浅の物件です。白い壁と大きな窓の組み合わせで清潔感のある外観です。基準階は25.29坪の正方形に近い間取りになっています。室内に給湯設備と男女別トイレが設置されています。ビル裏手が文化服飾学院や文化大学のある一帯になっています。甲州街道を渡ると西新宿の高層ビルが立ち並ぶエリアになります。西新宿はビジネス街のイメージが強いのですが、再開発でマンションが建つ予定がいくつかあります。当物件近くの西新宿三丁目西地区(オペラシティ、NTT東日本本社ビル、新宿パークタワー等に隣接する地域)には、3000戸超の大規模マンションの建設予定があり、2022年度着工、2029年度竣工を目指して計画が進んでいます。
VORT西新宿Ⅱは新宿駅(8番出口)の他に都庁前駅(A2番出口)徒歩8分、初台駅(東口)徒歩10分で利用も可能です。

近隣のエリア・駅から探す