VORT西新宿Ⅱのテナント募集中区画
| 階数 | 面積 | 賃料(共益費含む) | 保証金 | 入居可能日 | 検討リスト | 詳細 |
|---|---|---|---|---|---|---|
| 7 | 25.76坪 | 応相談(応相談) | 応相談 | 2026年8月上旬 | ||
| 9 | 25.76坪 | 応相談(応相談) | 応相談 | 2026年6月上旬 | ||
| 10 | 25.76坪 | 応相談(応相談) | 応相談 | 2026年7月下旬 |
…新着物件
VORT西新宿Ⅱのアクセス
VORT西新宿Ⅱの物件情報
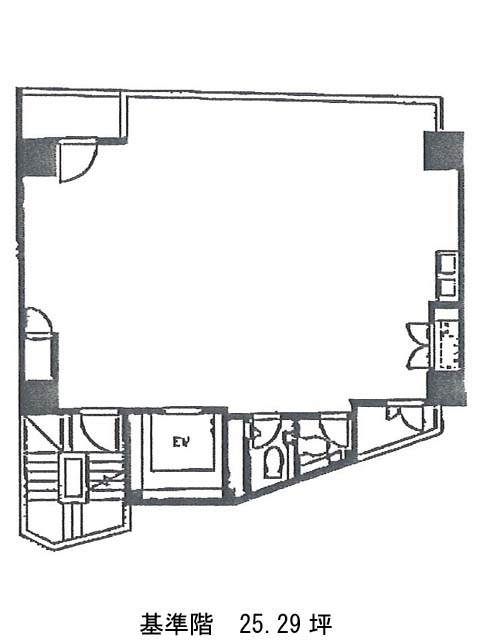
VORT西新宿Ⅱ(渋谷区代々木)は新宿駅(8番出口)から徒歩5分の賃貸オフィスです。甲州街道沿いに建つ、11階建てのビルです。2007年11月竣工の比較的築浅の物件です。白い壁と大きな窓の組み合わせで清潔感のある外観です。基準階は25.29坪の正方形に近い間取りになっています。室内に給湯設備と男女別トイレが設置されています。ビル裏手が文化服飾学院や文化大学のある一帯になっています。甲州街道を渡ると西新宿の高層ビルが立ち並ぶエリアになります。西新宿はビジネス街のイメージが強いのですが、再開発でマンションが建つ予定がいくつかあります。当物件近くの西新宿三丁目西地区(オペラシティ、NTT東日本本社ビル、新宿パークタワー等に隣接する地域)には、3000戸超の大規模マンションの建設予定があり、2022年度着工、2029年度竣工を目指して計画が進んでいます。VORT西新宿Ⅱは新宿駅(8番出口)の他に都庁前駅(A2番出口)徒歩8分、初台駅(東口)徒歩10分で利用も可能です。

