甲田ビル 2階
物件概要
物件番号
177-00343-12物件名
甲田ビル所在地
- 東京都渋谷区代々木2-16-2
- アクセスマップ
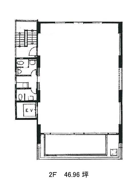
面積
46.96坪賃料(共益費含)
月額1,136,432円(24,200円/坪)
入居日
即保証金
6,574,400円礼金
なし更新料
新1ケ月償却費
2ケ月竣工
1988年4月構造
RC規模
地上 5階/地下1階トイレ
男女別空調
個別空調エレベーター
有セキュリティ
有駐車場
無耐震
新耐震基準基準階天井高
2550mm空室延床面積
185.57坪情報更新日
2025/11/14甲田ビルのテナント募集中区画
| 階数 | 面積 | 賃料(共益費含む) | 保証金 | 入居可能日 | 検討リスト | 詳細 |
|---|---|---|---|---|---|---|
| 1 | 55.64坪 | 1,530,100円/月(27,500円/坪) | 895万円 | 即 | ||
| 2 | 46.96坪 | 1,136,432円/月(24,200円/坪) | 657万円 | 即 | ||
| 3 | 43.32坪 | 1,048,344円/月(24,200円/坪) | 606万円 | 即 | ||
| 4 | 39.65坪 | 959,530円/月(24,200円/坪) | 555万円 | 即 |
…新着物件
アクセス
甲田ビルの物件情報
甲田ビル(渋谷区代々木)は新宿駅(8番出口)から徒歩3分の賃貸オフィスです。甲田ビルは新宿駅(8番出口)の他に南新宿駅(出口)徒歩7分、都庁前駅(A2番出口)徒歩8分で利用も可能です。

