4階は現在募集がありません
3フロア募集区画あり

新宿カメヤビル 4階

前の写真 次の写真

物件概要

物件番号

177-00051-30

物件名

新宿カメヤビル

所在地

面積

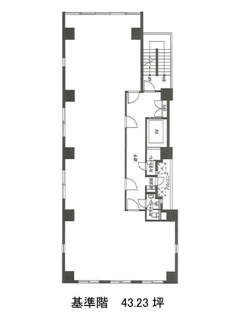
43.23坪

賃料(共益費含)


入居日

募集終了

保証金

礼金

更新料

償却費

竣工

1984年10月

構造

SRC

規模

地上10階

トイレ

男女別

空調

個別空調

エレベーター

セキュリティ

駐車場

耐震

新耐震基準

基準階天井高

2350mm

空室延床面積

128.63坪

最寄駅

情報更新日

2025/11/19

新宿カメヤビルのテナント募集中区画

階数 面積 賃料(共益費含む) 保証金 入居可能日 検討リスト 詳細
1 42.17坪 990,000円/月(23,477円/坪) 630万円
5 43.23坪 760,846円/月(17,600円/坪) 337万円
8 43.23坪 760,848円/月(17,600円/坪) 337万円
…新着物件

アクセス

新宿カメヤビルの物件情報

新宿カメヤビル(渋谷区代々木)は初台駅(東口)から徒歩8分の賃貸オフィスです。
大規模なビルが建ち並ぶ甲州街道沿いに位置する地上10階建てです。前面がブルーのタイル張りのスリムな外観で、1階でコンビニが営業中ですので休憩時等に活用できます。基準階面積約43坪の室内はL字型に近く、個別空調を完備しています。また男女別トイレ等の共用部が室外にまとまっていますので、レイアウトがしやすそうです。当物件の竣工年は1984年ですが、新耐震基準に適合する構造です。さらに不停止機能付きエレベーター1基を備え、機械警備によるセキュリティ管理を行っていますので高い安全性が期待できます。外回り等の際には電車のほか目の前にあるバス停からのバス移動も可能です。
新宿カメヤビルは初台駅(東口)の他に新宿駅(8番出口)徒歩8分、都庁前駅(A4番出口)徒歩9分で利用も可能です。

近隣のエリア・駅から探す