新宿カメヤビル 8階
物件概要
物件番号
177-00051-70物件名
新宿カメヤビル所在地
- 東京都渋谷区代々木3-26-2
- アクセスマップ
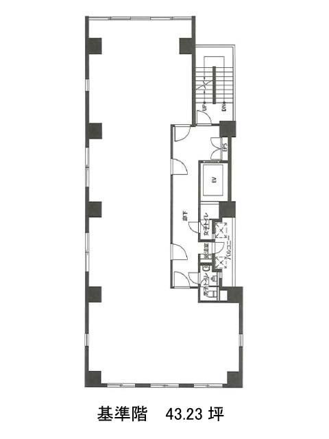
面積
43.23坪賃料(共益費含)
月額760,848円(17,600円/坪)
入居日
即保証金
3,371,940円礼金
なし更新料
新1ケ月償却費
1ケ月竣工
1984年10月構造
SRC規模
地上10階トイレ
男女別空調
個別空調エレベーター
有セキュリティ
有駐車場
無耐震
新耐震基準基準階天井高
2350mm空室延床面積
128.63坪情報更新日
2026/01/21新宿カメヤビルのテナント募集中区画
| 階数 | 面積 | 賃料(共益費含む) | 保証金 | 入居可能日 | 検討リスト | 詳細 |
|---|---|---|---|---|---|---|
| 1 | 42.17坪 | 880,000円/月(20,868円/坪) | 560万円 | 即 | ||
| 5 | 43.23坪 | 760,846円/月(17,600円/坪) | 337万円 | 即 | ||
| 8 | 43.23坪 | 760,848円/月(17,600円/坪) | 337万円 | 即 |
…新着物件
アクセス
新宿カメヤビルの物件情報
新宿カメヤビル(渋谷区代々木)は初台駅(東口)から徒歩8分の賃貸オフィスです。大規模なビルが建ち並ぶ甲州街道沿いに位置する地上10階建てです。前面がブルーのタイル張りのスリムな外観で、1階でコンビニが営業中ですので休憩時等に活用できます。基準階面積約43坪の室内はL字型に近く、個別空調を完備しています。また男女別トイレ等の共用部が室外にまとまっていますので、レイアウトがしやすそうです。当物件の竣工年は1984年ですが、新耐震基準に適合する構造です。さらに不停止機能付きエレベーター1基を備え、機械警備によるセキュリティ管理を行っていますので高い安全性が期待できます。外回り等の際には電車のほか目の前にあるバス停からのバス移動も可能です。新宿カメヤビルは初台駅(東口)の他に新宿駅(8番出口)徒歩8分、都庁前駅(A4番出口)徒歩9分で利用も可能です。

