9階は現在募集がありません
西新宿アイコービル 9階
物件概要
西新宿アイコービルのテナント募集中区画
現在、空室がございません。
アクセス
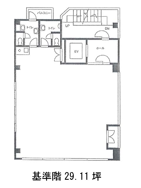
西新宿アイコービルの物件情報
西新宿アイコービル(渋谷区本町)は西新宿五丁目駅(A2番出口)から徒歩5分の賃貸オフィスです。西新宿アイコービルは西新宿五丁目駅(A2番出口)の他に初台駅(東口)徒歩10分、都庁前駅(A5番出口)徒歩13分で利用も可能です。

