安念ビル 6階
物件概要
物件番号
202-00064-51物件名
安念ビル所在地
- 東京都新宿区高田馬場1-29-20
- アクセスマップ
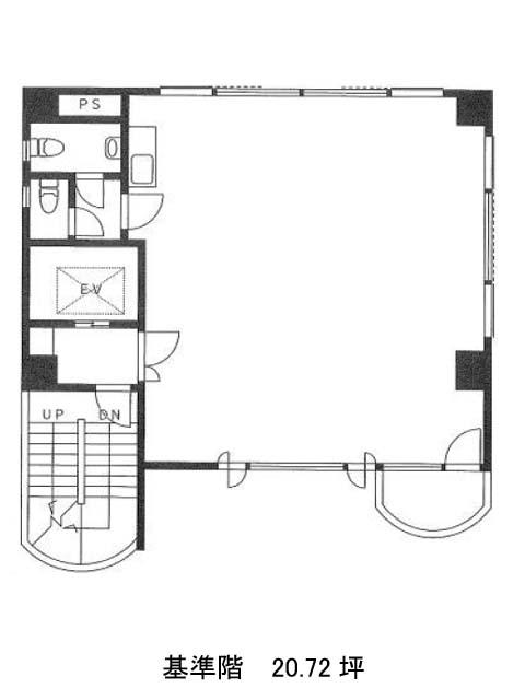
面積
20.72坪賃料(共益費含)
月額374,000円(18,052円/坪)
入居日
即保証金
1,740,107円礼金
なし更新料
新1ケ月償却費
2ケ月竣工
1991年4月構造
SRC規模
地上8階/地下1階トイレ
男女別空調
個別空調エレベーター
有セキュリティ
有駐車場
無耐震
新耐震基準基準階天井高
空室延床面積
20.72坪情報更新日
2026/02/03安念ビルのテナント募集中区画
| 階数 | 面積 | 賃料(共益費含む) | 保証金 | 入居可能日 | 検討リスト | 詳細 |
|---|---|---|---|---|---|---|
| 6 | 20.72坪 | 374,000円/月(18,052円/坪) | 174万円 | 即 |
…新着物件
安念ビルのアクセス
安念ビルの物件情報
安念ビル(新宿区高田馬場)は高田馬場駅(戸山口)から徒歩4分の賃貸オフィスです。安念ビルは高田馬場駅(戸山口)の他に西早稲田駅(2番出口)徒歩8分で利用も可能です。

