2階 202は現在募集がありません
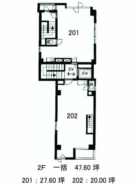
エレメンツ新宿ビル 2階 202
物件概要
エレメンツ新宿ビルのテナント募集中区画
現在、空室がございません。
アクセス
エレメンツ新宿ビルの物件情報
エレメンツ新宿ビル(新宿区新宿)は新宿御苑前駅(1番出口)から徒歩1分の賃貸オフィスです。エレメンツ新宿ビルは新宿御苑前駅(1番出口)の他に新宿三丁目駅(C5番出口)徒歩5分、新宿駅(東南口)徒歩11分で利用も可能です。

