新宿KMビルのテナント募集中区画
| 階数 | 面積 | 賃料(共益費含む) | 保証金 | 入居可能日 | 検討リスト | 詳細 |
|---|---|---|---|---|---|---|
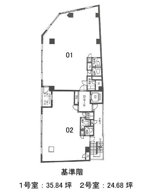
| 6 | 35.84坪 | 709,632円/月(19,800円/坪) | 322万円 | 即 | ||
| 8 | 29.20坪 | 578,160円/月(19,800円/坪) | 262万円 | 即 |
…新着物件
アクセス
新宿KMビルの物件情報
新宿KMビル(新宿区新宿)は新宿御苑前駅(1番出口)から徒歩2分の賃貸オフィスです。新宿KMビルは新宿御苑前駅(1番出口)の他に新宿三丁目駅(C5番出口)徒歩6分、新宿駅(A8番出口)徒歩12分で利用も可能です。

