7階 702は現在募集がありません
2フロア募集区画あり

新宿KMビル 7階 702

前の写真 次の写真

物件概要

物件番号

230-00590-40

物件名

新宿KMビル

所在地

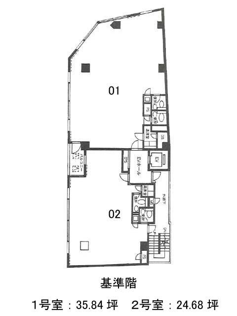
面積

24.68坪

賃料(共益費含)


入居日

募集終了

保証金

礼金

更新料

償却費

竣工

1994年1月

構造

SRC

規模

地上10階

トイレ

男女別

空調

個別空調

エレベーター

セキュリティ

駐車場

耐震

新耐震基準

基準階天井高

空室延床面積

65.04坪

最寄駅

情報更新日

2025/11/11

新宿KMビルのテナント募集中区画

階数 面積 賃料(共益費含む) 保証金 入居可能日 検討リスト 詳細
6 35.84坪 709,632円/月(19,800円/坪) 322万円 2026年1月中旬
8 29.20坪 578,160円/月(19,800円/坪) 262万円
…新着物件

アクセス

新宿KMビルの物件情報

新宿KMビル(新宿区新宿)は新宿御苑前駅(1番出口)から徒歩2分の賃貸オフィスです。
新宿KMビルは新宿御苑前駅(1番出口)の他に新宿三丁目駅(C5番出口)徒歩6分、新宿駅(A8番出口)徒歩12分で利用も可能です。

近隣のエリア・駅から探す