ADビルのテナント募集中区画
| 階数 | 面積 | 賃料(共益費含む) | 保証金 | 入居可能日 | 検討リスト | 詳細 |
|---|---|---|---|---|---|---|
| 6 | 91.68坪 | 応相談(応相談) | 応相談 | 2026年4月上旬 |
…新着物件
ADビルのアクセス
ADビルの物件情報
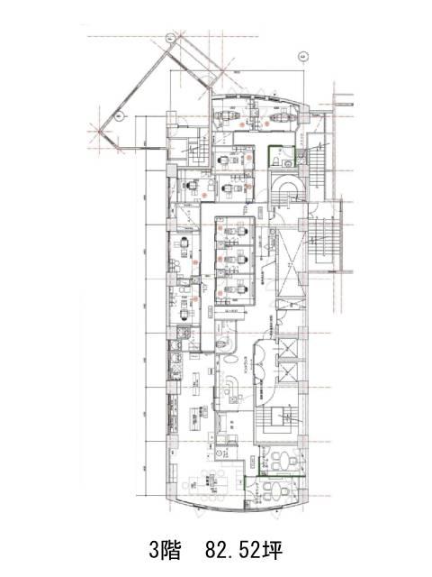
ADビル(新宿区新宿)は新宿三丁目駅(C1番出口)から徒歩1分の賃貸オフィスです。新宿三丁目駅からすぐ、新宿通り沿いに立地する視認性の高い物件。
基準階は約83坪で、使い勝手の良いレイアウトが可能です。周辺には伊勢丹をはじめとする百貨店やブランドショップが集まり、平日・週末問わず人通りのあるエリアです。飲食店や銀行、各種サービス店舗も豊富で、来訪者対応の多い業種にも適した環境です。現状の内装や設備についてはお問い合わせのうえ、詳細をご確認ください。ADビルは新宿三丁目駅(C1番出口)の他に新宿駅(A8番出口)徒歩6分、新宿西口駅(出口1)徒歩6分で利用も可能です。

