9階 06-08は現在募集がありません
4フロア募集区画あり
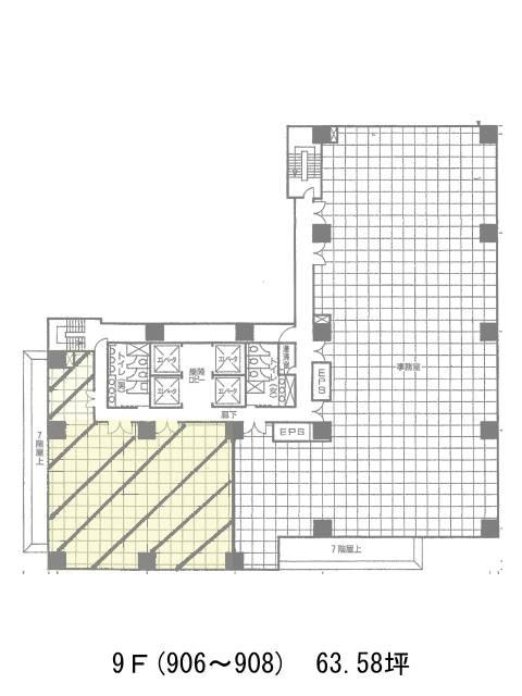
西新宿パークウエストビル 9階 06-08
物件概要
物件番号
237-00176-388物件名
西新宿パークウエストビル所在地
- 東京都新宿区西新宿6-12-1
- アクセスマップ
面積
63.58坪賃料(共益費含)
−入居日
募集終了保証金
−礼金
−更新料
−償却費
−竣工
1994年6月構造
SRC規模
地上13階/地下2階トイレ
男女別空調
個別空調エレベーター
有セキュリティ
有駐車場
有耐震
新耐震基準基準階天井高
2700mm空室延床面積
460.37坪情報更新日
2026/03/13西新宿パークウエストビルのテナント募集中区画
…新着物件
西新宿パークウエストビルのアクセス
西新宿パークウエストビルの物件情報
西新宿パークウエストビル(新宿区西新宿)は西新宿駅(E4番出口)から徒歩6分の賃貸オフィスです。1994年6月に竣工され、新耐震基準に適合した地上13階建てのSRC構造のビルです。全面ガラス張りの外観は視認性が高く、エレベーターホールや廊下はシックな雰囲気で品格の高さを感じさせます。基準階フロアは約250坪、個別空調、OAフロアを完備しており、男女別トイレと湯沸室はエレベーターホール側(室外)に設置され、清潔感のある空間となっております。駐車場も併設され、1階には銀行が入居していたりと利便性も高いでしょう。西新宿パークウエストビルは西新宿駅(E4番出口)の他に都庁前駅(E4番出口)徒歩6分、西新宿五丁目駅(出口)徒歩11分で利用も可能です。

